新築一戸建て
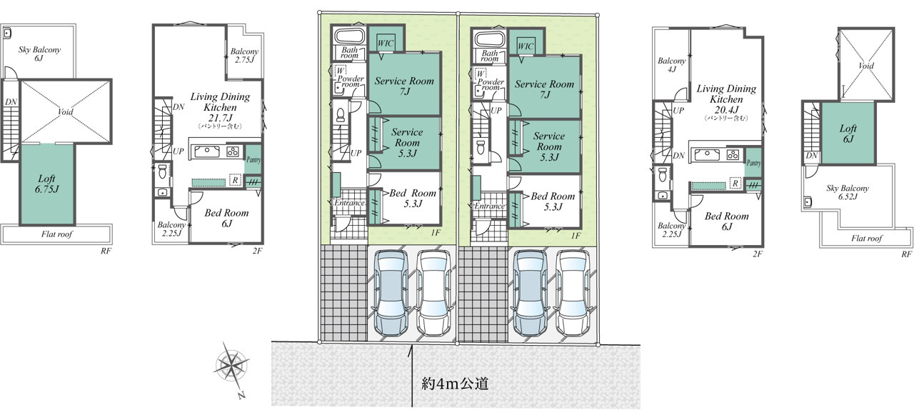
横浜市港北区高田東1丁目 2号棟 新築一戸建
交通
市営地下鉄グリーンライン「高田」駅 徒歩9分
所在
神奈川県横浜市港北区高田東1丁目
情報更新日 / 2026年04月11日
次回更新予定日 / 2026年04月25日