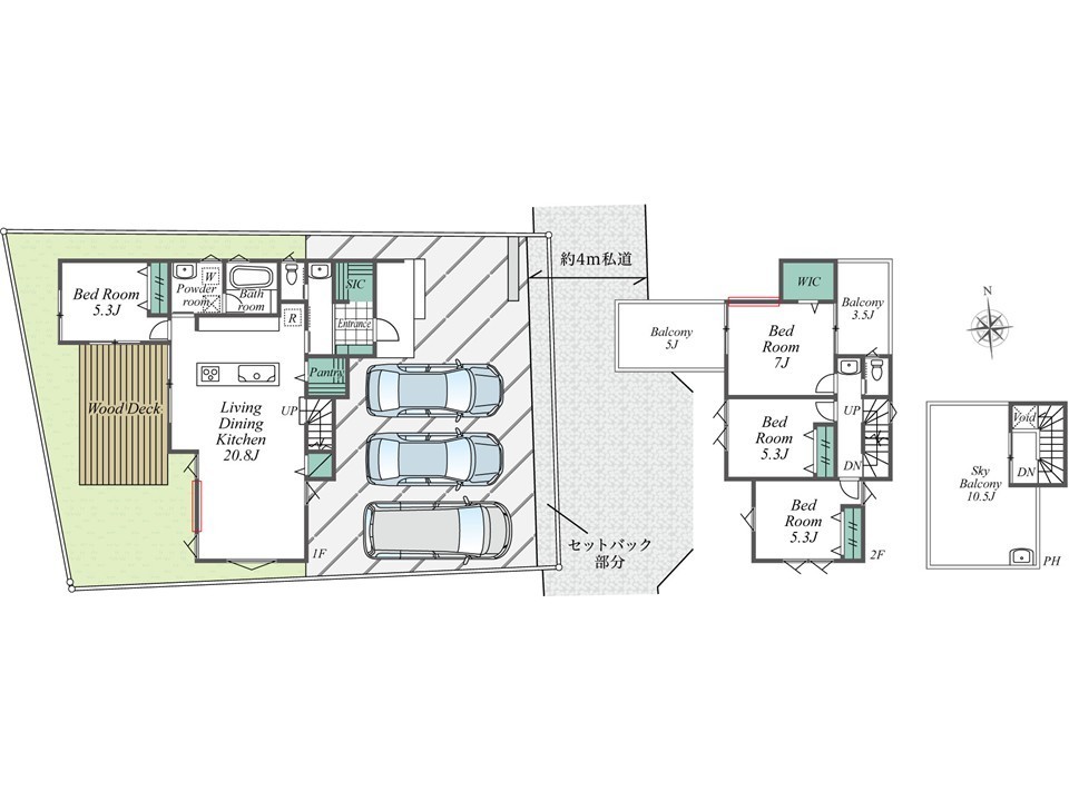
新築一戸建て
横浜市保土ヶ谷区月見台 新築一戸建
交通
横須賀線「保土ケ谷」駅 徒歩13分
所在
神奈川県横浜市保土ケ谷区月見台
情報更新日 / 2026年04月16日
次回更新予定日 / 2026年04月30日