- リアレスト株式会社 ホーム
- 横浜市戸塚区秋葉町 リノベーション戸建
- 物件概要・画像
| 価格 | 4,380万円(税込)ローンシミュレーションローンシミュレーション | ||
|---|---|---|---|
| 所在地 | 神奈川県横浜市戸塚区秋葉町 | ||
| 交通 | 横須賀線「東戸塚」駅バス10分 バス停「秋葉」停歩5分 東海道本線「戸塚」駅バス16分 バス停「秋葉」停歩5分 | ||
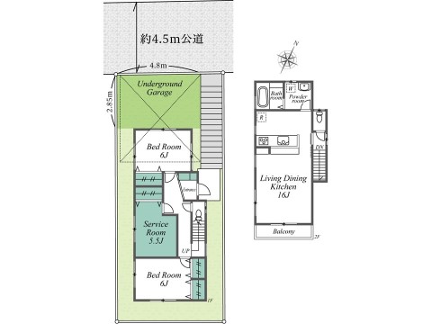
| 間取 | 2SLDK (LDK16帖、洋室6帖、洋室6帖、S5.5帖) | ||
| 土地面積 | 105.29m² | ||
| 建物面積 | 83.63m² | ||
| 構造・規模 | 木造 2階建て | ||
| 築年月 | 2011年6月築 | ||
| 地目 | 宅地 | ||
| 用途地域 | 第一種低層住居専用地域 | ||
| 建ぺい率 | 50% | ||
| 容積率 | 80% | ||
| 都市計画 | 市街化区域 | ||
| 駐車スペース | 1台(地下車庫) | ||
| 権利種類 | 所有権 | ||
| 接道 | 北西側4.5M公道に接道 | ||
| 小学校区 | 秋葉小学校(350m) | ||
| 中学校区 | 秋葉中学校(350m) | ||
| 取引態様 | 売主 | ||
| 設備 | 公営水道、本下水、都市ガス | ||
- ※価格は物件の代金総額を表示しており、消費税が課税される場合は税込み価格です。(1,000円未満は切り上げ。)
税率は引き渡し時期により異なりますので、各物件の詳細につきましてはお問い合わせください。 - ※敷地権利が借地権のものは価格に権利金を含みます。
- ※制作中に内容が変更される場合もありますので、あらかじめご了承ください。
- ※購入の前には物件内容や契約条件についてご自身で十分な確認をしていただくようにお願いいたします。
- ※完成予想図はいずれも外構、植栽、外観等実際のものとは多少異なることがあります。
- ※CG合成の画像の場合、実際とは多少異なる場合があります。
























