新築一戸建て
横浜市港北区鳥山町 新築一戸建
交通
横浜線「小机」駅 徒歩18分
所在
神奈川県横浜市港北区鳥山町
物件見学(無料)
物件見学(無料)
お問い合わせ(無料)
お問い合わせ(無料)
情報更新日 / 2026年04月11日
次回更新予定日 / 2026年04月25日
トップ
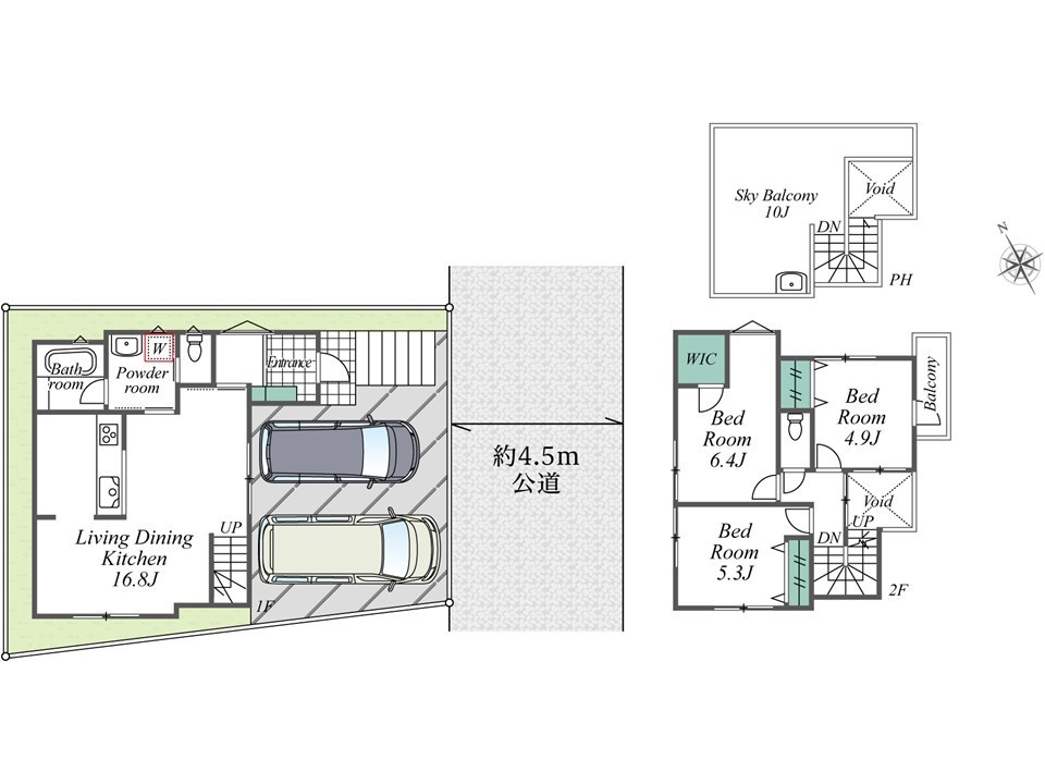
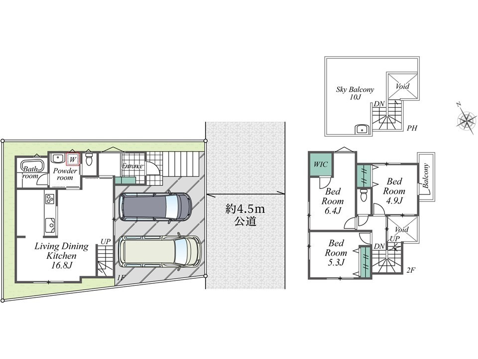
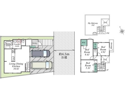
区画図・間取図
アクセス
物件概要・画像
リアレスト株式会社 ホーム
横浜市港北区鳥山町 新築一戸建
トップ
区画図・間取図
アクセス
物件概要・画像
トップ
区画図・間取図
アクセス
物件概要・画像